Bridge construction details drawings 2d view autocad file
Description
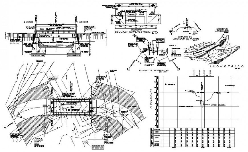
Bridge construction details drawings 2d view autocad file that show bridge construction plan details with retaining wall details and bridge span details that includes details of bridge length and width details along with specification and dimension blocks details.
Uploaded by:
Eiz
Luna

